Frei werdendes Apartment, gepflegter Zustand am Gustav-Mahler-Weg
Zimmer
Die Immobilie vorgestellt
Objektbeschreibung
Die angebotene Wohnung befindet sich im Hochparterre, in einer gepflegten Mehrfamilienhausanlage (Baujahr 1973), am Gustav-Mahler-Weg.
Das Gemeinschaftseigentum ist in ordentlichem Zustand.
Es besteht kein Renovierungsstau:
Hausfassade, Balkone, Aufzug sowie Tiefgarage sind bereits saniert bzw. generalüberholt.
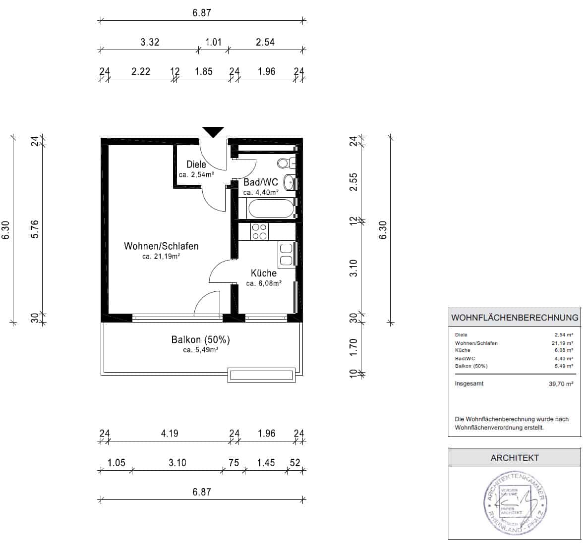
Aufgeteilt ist die Wohnung, wie folgt:
Insgesamt 39,7 m² Wohnfläche:
Diele, mit Garderobe / Einbauschrank: 2,54 m²
Wohn/Schlafzimmer: 21,19m²
Bad mit Wanne: 4,4 m²
Küche: 6,08 m²
Balkon: 10,98 m² zu 1/2 = 5,49 m²
Ausstattung:
+ Parkett in Diele und Wohn/Schlafzimmer
+ Badezimmer mit Wanne
+ Küche mit Fenster, gepflegte Einbauküche im Kaufpreis enthalten
+ Balkon mit Süd-Ausrichtung
Zur Wohnung gehört ein Kellerabteil.
Mitverkauft wird ein TG-Einzelstellplatz
Die Wohnung ist nicht vermietet und wird zum 15. Mai 2026 frei.
Der Kaufpreis setzt sich zusammen, wie folgt:
Wohnung 250.000,00 € plus TG-Stellplatz 20.000,00 €= Gesamtpreis 270.000,00 €
Bei Zustandekommen eines notariellen Kaufvertrages ist vom Käufer eine Provision in Höhe von 3,57 % inkl. 19% gesetzl. MwSt. vom beurkundeten Kaufpreis an die Eichler Immobilien GmbH zu zahlen.
Lage
Das Wohngebiet in Baldham ist ein Gemeindeteil der Gemeinde Vaterstetten im oberbayerischen Landkreis Ebersberg.
Es befindet sich ca. 18 km östlich der Landeshauptstadt München und 15 km westlich der Kreisstadt Ebersberg.
Über die B 304 bzw. Wasserburger Landstraße fährt man in ca. 25 Minuten bis in die Münchner Innenstadt.
In Baldham gibt es ein großes Angebot an Einkaufsmöglichkeiten, Gastronomie, Sport und Kultur.
Geschäfte für den täglichen Bedarf sind im Umkreis von innerhalb fünf Gehminuten erreichbar
– z.B. Supermarkt, Drogeriemarkt, Metzger, Bäcker… ebenso wie Ärzte und Apotheke.
Kindergärten, Grundschule, Realschule und Gymnasium sind direkt in Baldham bzw. Vaterstetten.
Zum Bahnhof geht man 5 Minuten. Die Buslinie 465 (regionale Verbindung zwischen den benachbarten Ortschaften Glonn – Baldham – Egmating – Oberpframmern – Zorneding) hält an mehreren Stationen innerhalb von Baldham.
Objektart:
Wohnung
Objekttyp:
Erdgeschoss
Wohnfläche:
39.70 m2
Anzahl Zimmer:
1.00
Anzahl Badezimmer:
1.00
Baujahr:
1973
Befeuerung
Gas
Fahrstuhl
Personen
Kaufpreis:
250.000 €
Energieausweistyp:
Verbrauch
Energieeffizienzklasse:
D
Endenergieverbrauch:
102.00 kWh/(m²*a)
