Einfamilienhaus in Ortsrandlage (Pöring-Zorneding:) – Verkehrsgünstig und naturnah gelegen
Zimmer
Die Immobilie vorgestellt
Objektbeschreibung
Das angebotene Einfamilienhaus wurde 1972 errichtet. Die Ausstattung entspricht dem Baujahr – eine Modernisierung bietet Raum zur individuellen Gestaltung.
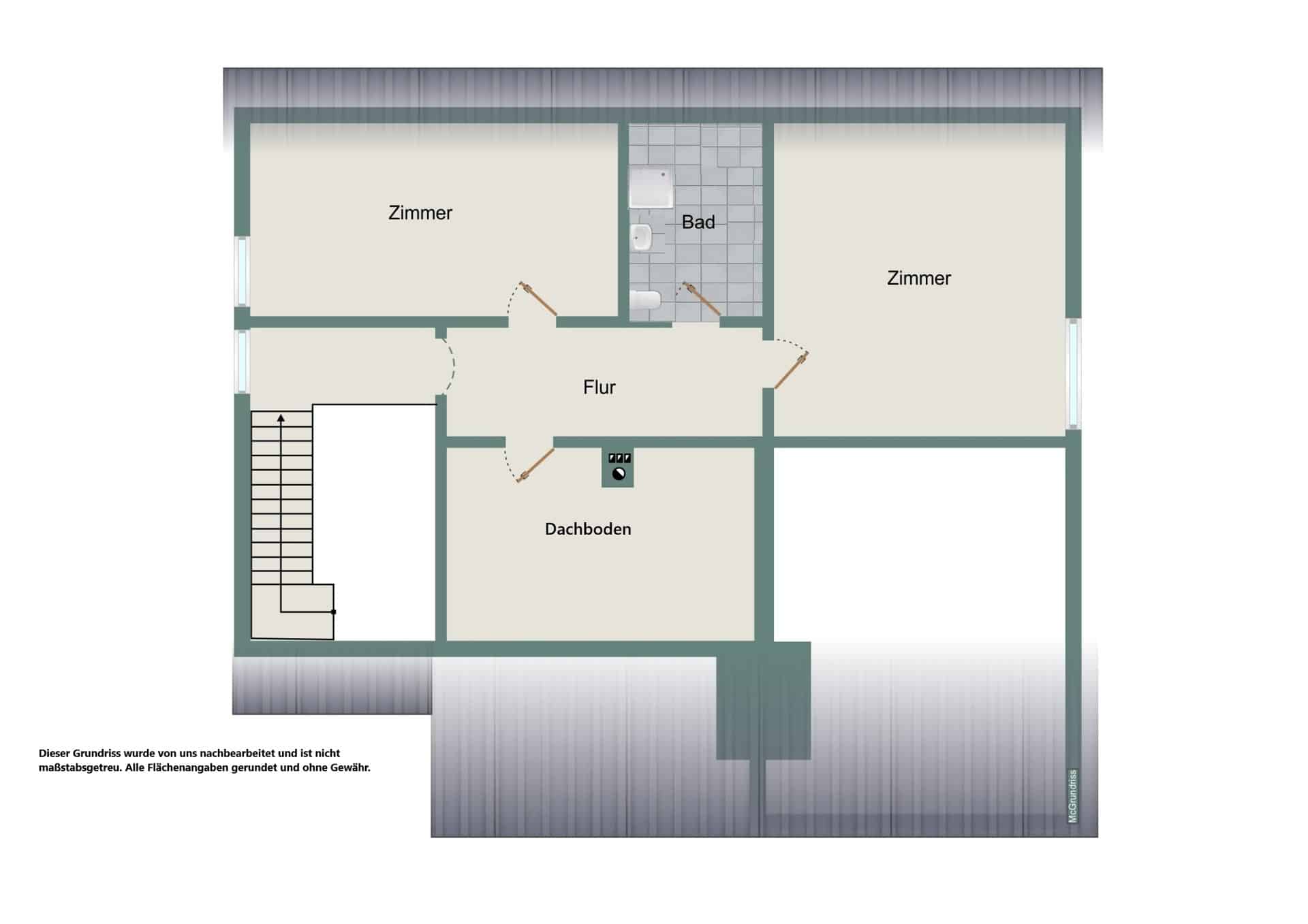
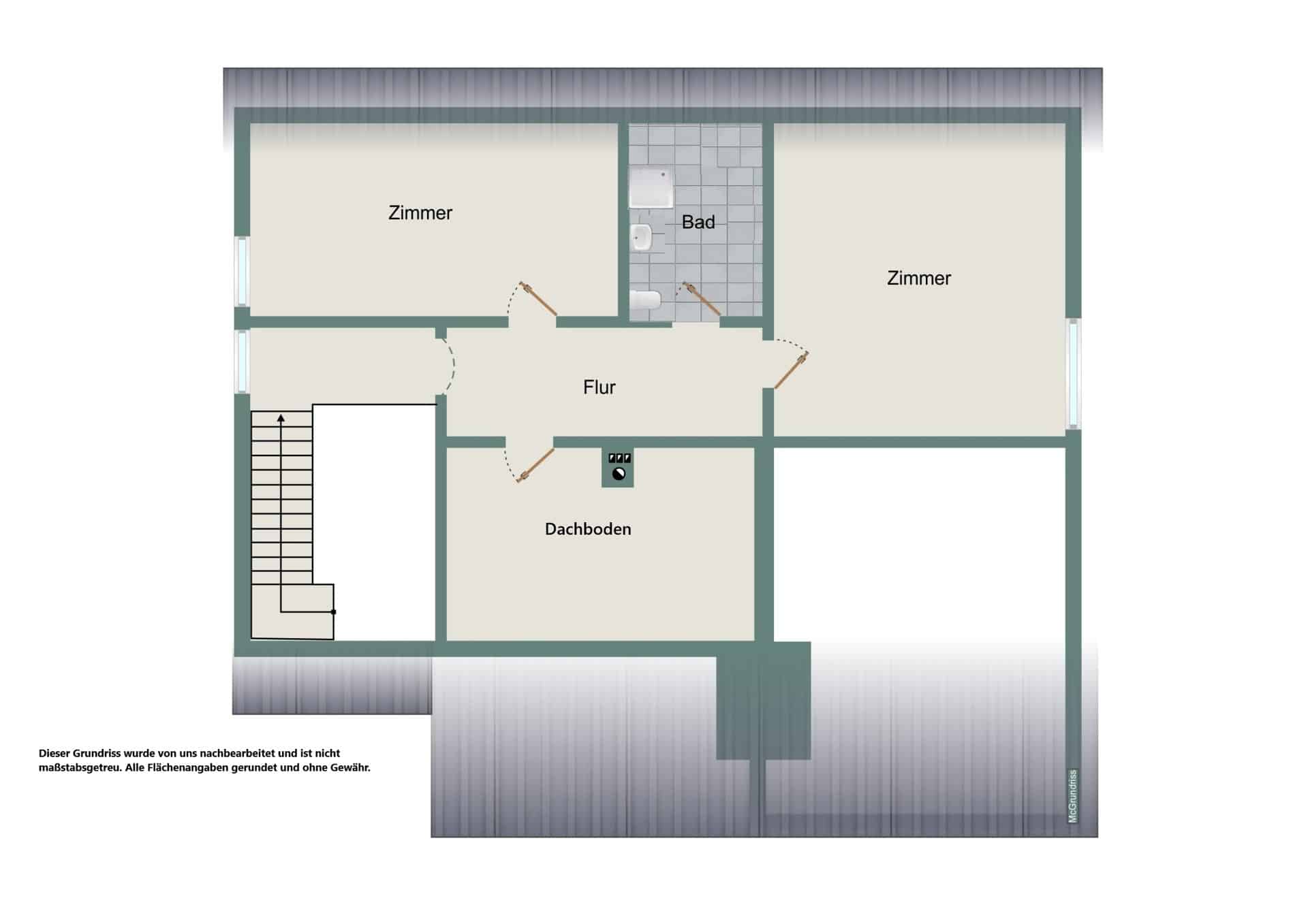
Im Erdgeschoss befinden sich sämtliche Räume des täglichen Wohnens, darunter Wohn- und Schlafzimmer, Küche, Bad sowie ein praktisches Ankleidezimmer. Im Dachgeschoss befindet sich ein weiteres Tageslichtbad mit Dusche und zwei großräumige Zimmer.
Das vollständig unterkellerte Gebäude bietet im Untergeschoss beheizte Nutzräume. Hervorzuheben ist ein großräumiger Party- bzw. Hobbyraum, der mit einer Bar ausgestattet ist.
Eine kleine Sauna ist ebenso vorhanden. Beheizt wird das Gebäude durch eine Öl-Heizung.
Aufteilung (Flächenangaben gerundet und ohne Gewähr):
Kellergeschoss: 35 m²
Erdgeschoss: 141,2 m²
Dachgeschoss: 75,0 m²
Gesamt ca. 251,2 m²
Gesamtkaufpreis € 1.350.000,00
Provision: 3,57 % vom beurkundeten Kaufpreis (inkl. 19% MwSt.)
Lage
Die Gemeinde Zorneding mit dem Ortsteil Pöring liegt rund 20 Kilometer südöstlich von München im Landkreis Ebersberg und zählt etwa 9.400 Einwohner. Der Standort ist aufgrund seiner Nähe zur Landeshauptstadt und der gleichzeitig ruhigen, naturnahen Umgebung besonders gefragt.
Das Ortsbild ist geprägt von einer aufgelockerten, ansprechenden Bebauung mit Ein- und Mehrfamilienhäusern sowie erhaltenen Bauernanwesen, die dem Ort einen dörflichen, gewachsenen Charakter verleihen.
Die Verkehrsanbindung nach München ist sehr gut: Über die Bundesstraße 304 bzw. die Wasserburger Landstraße erreicht man die Münchner Innenstadt in etwa 25 Minuten. Zusätzlich besteht eine direkte Anbindung an das S-Bahn-Netz (S4), sodass auch der öffentliche Nahverkehr bequem nutzbar ist.
Zorneding und Pöring bieten eine umfangreiche Infrastruktur: Einkaufsmöglichkeiten für den täglichen Bedarf (Supermarkt, Drogerie, Bäcker, Metzger), medizinische Versorgung (Ärzte, Apotheke), Gastronomie sowie ein vielfältiges Sport- und Kulturangebot sind vor Ort oder im nahen Umfeld vorhanden.
Familien profitieren von einer guten Bildungsinfrastruktur. Kindergärten und eine Grundschule befinden sich direkt im Ort. Weiterführende Schulen wie Realschulen (in Ebersberg und Vaterstetten) sowie Gymnasien (in Kirchseeon, Vaterstetten und Grafing) sind mit der S-Bahn gut erreichbar.
Objektart:
Haus
Objekttyp:
Einfamilienhaus
Wohnfläche:
251.50 m2
Anzahl Zimmer:
5.00
Anzahl Schlafzimmer:
4.00
Anzahl Badezimmer:
2.00
Baujahr:
1972
Kamin
Befeuerung
Erdwaerme
Sauna
Kaufpreis:
1.245.000 €
Energieausweistyp:
Bedarf
Energieeffizienzklasse:
F
